



€ op aanvraag
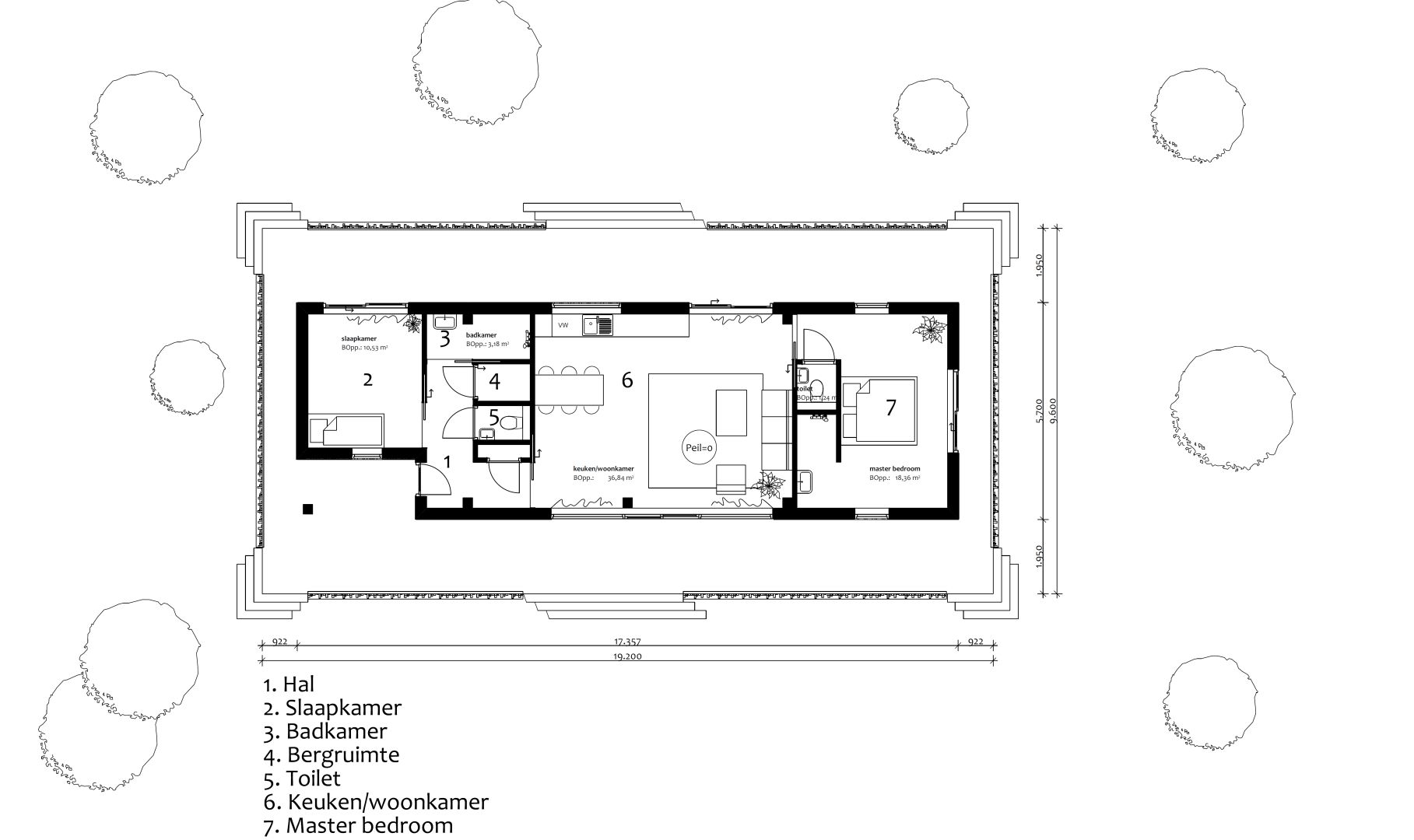
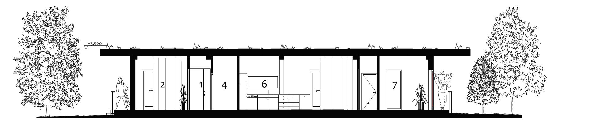
Heerlijk comfortabel wonen in deze ruime, luxe bungalowwoning, opgebouwd met duurzame materialen zoals houtskeletbouw elementen en isolatiemateriaal. Verticale houten delen zorgen voor een strak en variërend uiterlijk, terwijl beplanting als dakbedekking niet alleen duurzaam oogt maar ook een duurzame functie heeft. De woning beschikt over een betonnen vloer of houten vlonder rondom en biedt toegang tot diverse ruimtes zoals de keuken/woonkamer, slaapkamer, badkamer, berging en toilet. Een schuifdeur verbindt de woonkamer met de buitenomgeving en de master bedroom heeft een eigen toilet en luxe douche. Dankzij goede isolatie van vloer, gevels en dak is de woning energiezuinig, en met zonnepanelen of een warmtepomp kan deze zelfs energieneutraal worden.
© 2024, Nextbuilders. Alle rechten voorbehouden.